




エステムプラザ品川大崎駅前レジデンシャル(品川区大崎1)
■ 物件情報
| 物件名 | エステムプラザ品川大崎駅前レジデンシャル |
|---|---|
| 所在地 | 東京都品川区大崎1丁目20-15 |
| 最寄駅 |
JR山手線・埼京線・湘南新宿ライン 東京臨海高速鉄道りんかい線「大崎」駅 徒歩2分 東急池上線「大崎広小路駅」 徒歩13分 JR山手線「五反田駅」 徒歩17分 |
| 環 境 |
まいばすけっと 大崎駅前店 徒歩6分 / 480m ローソン ゲートシティ大崎店 徒歩4分 / 270m トモズ ゲートシティ大崎店 徒歩7分 / 530m 大崎駅西口郵便局 徒歩6分 / 480m みずほ銀行 大崎支店 徒歩7分 / 510m サークルKサンクス ゲートシティ大崎店 徒歩6分 / 410m |
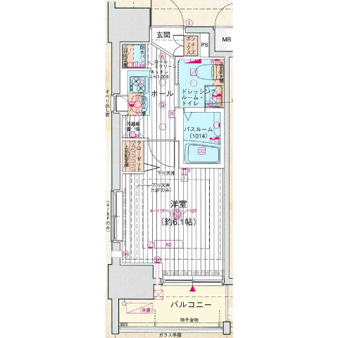
| 間取り | 1K(20.60㎡) |
| 竣 工 | 2014年2月 |
| 構 造 | 鉄筋コンクリート造 地下1階建 地上15階建 |
■ 物件写真・間取り ほか
■ バーチャル内覧ツアー

各線「大崎」駅徒歩2分でございます(ノ*>∀<)ノ♡、
周辺には•*¨*•.¸¸♪(◦˙︶˙◦)/
●成城石井 ゲートシティ大崎店 210m(10:00~21:00)
●ライフ 大崎ニューシティ店350m(9:30~23:00)
●ライフドラッグプラス品川御殿山店 500m(9:30~22:00)
●まいばすけっと大崎駅前 550m(7:00~23:00)
●三穂クリニック290m(9:00~13:00、15:00~18:30)
●伊藤内科 500m(9:00~19:00)
●大崎病院 東京ハートセンター 550m(9:00~16:00)
●江クリニック(歯科病院)850m(7:30~18:30)
●ゲートシティ大崎 40m(7:00~0:00)
●大崎ニューシティ 350m(9:30~23:00)
●TSUTAYA 大崎駅前店 500m(10:00~21:00)
●ThinkPark Tower 400m(7:00~0:00)
●大崎駅前郵便局 350m(*´ω`*)❀
─=≡Σ((( つ•̀ω•́)つ クリーニング屋さん
●国際クリーニング(株) 大崎店400m(10:00~19:00)
●スワローチェーン 御殿山店 450m(11:00~18:00)
●クリーニングニューパリー大崎店 500m(9:00~19:00)
●ポニークリーニング 大崎ウィズシティ店 600m(9:00~20:00)
●居木橋公園 240m
●小関公園 500m
子どもの遊び場やちょっと一休みしたい時にぴったりの公園でございます。⁽⁽٩(๑˃̶͈̀ ᗨ ˂̶͈́)۶⁾⁾
デザインナーズマンション♥•*¨*•.¸¸♪(◦˙︶˙◦)/
都心生活を堅牢に守る、先進のセキュリティシステム、
安心の防犯カメラ13台設置、TVモニター付きオートロック、
不審者などの不要な侵入を24時間ガード出来ます、セキュリティ安心です。
((o(^∇^)o))
宅配ボックス設置、日時を気にせず最短で荷物を受け取る、
自分が不在でも宅配ボックスに荷物が入れられれば、帰宅と同時に受け取ることが可能です。(((o(♡´▽`♡)o)))
室内には•*¨*•.¸¸♪(◦˙︶˙◦)/
無料で光インターネット有線・無線が使い放題です(((o(*゚▽゚*)o)))
キッチンには2口ガスコンロ、╰(*´︶`*)╯♡効率よく料理ができます。
シワが気になる「ワイシャツ」の乾燥に便利な浴室暖房乾燥機も標準設備でございます。(*´︶`*)
(*´ω`*)❀
ドラム式全自動洗濯機標準設備、
洗濯から乾燥までノンストップの全自動、( ˆoˆ )/
外出中や就寝中に洗濯から乾燥まで完了
☂️雨が多い時期にも部屋干しの手間がなく、
必要な衣類を素早く洗濯できます。
ペット飼育可物件✧*。٩(ˊᗜˋ*)و✧*。大好きなペットと一緒に快適に暮らせます
長めの滞在ならビジネスホテルよりマンスリーマンションがお得です!
!!♡━━━━(゚∀゚)━━━━♡!!
● 地域紹介コラムで紹介中! ・・・ 超高層ビルの競演が続く、東京副都心のひとつ
【翌々月(2月)入居】初月のみ特別価格でご紹介いたします!
通常賃料210,000円のところを
初月30日分 30%OFFの147,000円の特別価格でご案内いたします!
対象条件:2月10日までにご入居開始かつ30日以上ご利用いただける方
※ 契約延長(再契約)時、割引の継続適用はなくなります
※ その他のキャンペーンと併用はできません
【家具付賃貸プラン】1年以上ご利用いただける場合にお得になるプランです!
通常賃料210,000円のところを
ご利用期間中ずっと 144,000円~でご案内いたします!
詳しくは こちら を参照
対象条件:1年以上ご利用いただける方
※ 別途共益費が月々必要となります
※ 初期費用として、保証会社初回保証料・鍵交換代・室内クリーニング代・火災保険料が必要となります
※ 1年以上の超長期のご利用なら、この家具付賃貸プランがお得です!
■ 通常ご利用価格
スーパーショート
(~1ヶ月未満)
7,500円/日
52,500円/週
ショート
(30日~59日)
7,000円/日
210,000円/30日
ミドル
(60日~89日)
6,700円/日
201,000円/30日
セミロング
(90日~179日)
6,500円/日
195,000円/30日
ロング
(180日~)
6,200円/日
186,000円/30日
■ その他の費用
【水道光熱費(共益費等を含む)】
1500円/日 (2名様入居の場合 +300円/日、ペット飼育時 300円~500円/日)
【清掃費 ※初回のみ必要です】
19,800円/1ヶ月未満、25,300円/3ヶ月未満、30,800円/6ヶ月未満、41,800円/1年未満、52,800円/1年以上
※ ペット可物件の場合、飼育時には別途、保証金・登録料・追加光熱費・追加清掃費が必要です。(規約有)
※ 寝具(布団・シーツ類)は別途料金が必要です。(寝具類の提供元:株式会社ハッチ、株式会社パパネッツ)
※ 入居期間延長する場合は、再契約手数料として、別途 5,500円/回(税込)が必要です。
■ 設備情報
| 共有部分 |
![]() ![]() ![]() ![]() ![]() ![]() エレベーター、オートロック、宅配ボックス、コンシェルジュルーム、防犯カメラ、24時間利用可能ゴミ置き場 |
|---|---|
| 設備情報 |
![]() ![]() ![]() ![]() ![]() ![]() ![]() ![]() ![]() ![]() ![]() ![]() ![]() ![]() ![]() ![]() ![]() ![]() ![]() ![]() ![]() ![]()
テレビ・テレビ台、ドラム式洗濯乾燥機、縦型洗濯機、2ドア冷凍冷蔵庫、電子レンジ、カーテン、ベッド、電気ケトル、掃除機、ドライヤー、デスク・イス、ハンガー5本、トイレットペーパー2個、ティッシュ1箱、温水洗浄便座、インターネット無料、バス・トイレ別、2口ガスコンロ、浴室乾燥機、クローゼット、独立洗面台、TVモニターホン |
■ マンスリー オプション
必需品セット
(販売品)
22,000円(税込)
タオル、バスタオル、シャンプー・リンス、ボディソープ、洗面器、風呂イス、風呂用洗剤、バススポンジ、バスマット、スリッパ、紙コップ、ティッシュ、ハンドソープ、トイレットペーパー、トイレ掃除用ブラシ、トイレ用洗剤、洗濯洗剤、ハンガー、小物干しハンガー
寝具セット
(レンタル)
シングル:
11,000円(税込)
セミダブル:
16,500円(税込)
ダブル:
16,500円(税込)
毛布 シングル:
3,300円(税込)
毛布 セミダブル:
5,500円(税込)
毛布 ダブル:
5,500円(税込)
* 寝具類の提供元:株式会社ハッチ、株式会社パパネッツ
テレワーク応援セット
(レンタル)
6,600円(税込)
・HDMIケーブル 1本
・Webカメラ 1台(200万画素 フルHD)
・スピーカーフォン 1台(マイク内蔵)
自炊セット
(販売品)
22,000円(税込)
茶碗、お椀、丼、大皿・小皿(各2枚)、箸、鍋、フライパン、包丁・まな板、おたま、フライ返し、菜箸、ボウル・ざる、スプーン・フォーク、マグカップ、食器水切カゴ、食器洗剤、スポンジ、布巾、皮むき・おろし器
炊飯器
(販売品)
新品:
11,000円(税込)
中古:
5,500円(税込)
オーブントースター
(販売品)
新品:
6,600円(税込)
中古:
3,300円(税込)
モバイルWi-Fi
(レンタル)
1日あたり
220円(税込)
(容量制限あり)
ハンドスチーマー
(レンタル)
1日あたり
110円(税込)
(上限9,900円まで)
ペット用ケージ&トイレシーツセット(レンタル)

























































