


エステムプラザ横濱 元町山手(横浜市中区吉浜町)
■ 物件情報
| 物件名 | エステムプラザ横濱 元町山手 |
|---|---|
| 所在地 | 神奈川県横浜市中区吉浜町2番地6 |
| 最寄駅 |
JR根岸線・京浜東北線「石川町」駅より徒歩2分 JR根岸線・京浜東北線・横浜市営地下鉄「関内」駅より徒歩8分 みなとみらい21線「元町・中華街」駅より徒歩10分 |
| 環 境 | |
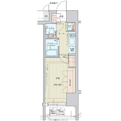
| 間取り | 1K(21.77㎡) |
| 竣 工 | 2008年2月 |
| 構 造 | 鉄筋コンクリート造 地上11階建 |
■ 物件写真・間取り ほか

JR根岸線・京浜東北線「石川町」駅へ徒歩2分。3駅4線の多彩なアクセスで、都内をも便利に住みこなすグッドポジション。
元町商店街や中華街は自転車で2分程度の距離感で、みなとみらいへも6分で行けます。このように、本物件は都心生活を楽しんでいただける条件が揃っています。
インターネットが使い放題のたいへんお得な物件で、不在時でも便利な宅配ボックス・2口ガスコンロキッチン・浴室暖房乾燥機・エアコン・暖房洗浄便座など、設備充実です。
長めの滞在ならビジネスホテルよりマンスリーマンションがお得です!
【家具付賃貸プラン】 1年以上ご利用いただける場合にお得になるプランです!
通常賃料162,000円のところを
ご利用期間中ずっと 88,000円~でご案内いたします!
詳しくは こちら を参照
対象条件:1年以上ご利用いただける方
※ 別途共益費が月々必要となります
※ 初期費用として、保証会社初回保証料・鍵交換代・室内クリーニング代・火災保険料が必要となります
※ 1年以上の超長期のご利用なら、この家具付賃貸プランがお得です!
■ 通常ご利用価格
ショート
(30日~59日)
5,400円/日
162,000円/30日
ミドル
(60日~89日)
5,100円/日
153,000円/30日
セミロング
(90日~179日)
4,900円/日
147,000円/30日
ロング
(180日~)
4,600円/日
138,000円/30日
■ その他の費用
【水道光熱費(共益費等を含む)】
1500円/日 (2名様入居の場合 +300円/日、ペット飼育時 300円~500円/日)
【清掃費 ※初回のみ必要です】
19,800円/1ヶ月未満、25,300円/3ヶ月未満、30,800円/6ヶ月未満、41,800円/1年未満、52,800円/1年以上
※ ペット可物件の場合、飼育時には別途、保証金・登録料・追加光熱費・追加清掃費が必要です。(規約有)
※ 寝具(布団・シーツ類)は別途料金が必要です。(寝具類の提供元:株式会社ハッチ、株式会社パパネッツ)
※ 入居期間延長する場合は、再契約手数料として、別途 5,500円/回(税込)が必要です。
■ 設備情報
| 共有部分 |
![]() ![]() ![]() ![]() ![]() エレベーター、オートロック、宅配ボックス、コンシェルジュルーム、防犯カメラ |
|---|---|
| 設備情報 |
![]() ![]()
テレビ・テレビ台、バス・トイレ別 |
■ マンスリー オプション
必需品セット
(販売品)
22,000円(税込)
タオル、バスタオル、シャンプー・リンス、ボディソープ、洗面器、風呂イス、風呂用洗剤、バススポンジ、バスマット、スリッパ、紙コップ、ティッシュ、ハンドソープ、トイレットペーパー、トイレ掃除用ブラシ、トイレ用洗剤、洗濯洗剤、ハンガー、小物干しハンガー
寝具セット
(レンタル)
シングル:
11,000円(税込)
セミダブル:
16,500円(税込)
ダブル:
16,500円(税込)
毛布 シングル:
3,300円(税込)
毛布 セミダブル:
5,500円(税込)
毛布 ダブル:
5,500円(税込)
* 寝具類の提供元:株式会社ハッチ、株式会社パパネッツ
テレワーク応援セット
(レンタル)
6,600円(税込)
・HDMIケーブル 1本
・Webカメラ 1台(200万画素 フルHD)
・スピーカーフォン 1台(マイク内蔵)
自炊セット
(販売品)
22,000円(税込)
茶碗、お椀、丼、大皿・小皿(各2枚)、箸、鍋、フライパン、包丁・まな板、おたま、フライ返し、菜箸、ボウル・ざる、スプーン・フォーク、マグカップ、食器水切カゴ、食器洗剤、スポンジ、布巾、皮むき・おろし器
炊飯器
(販売品)
新品:
11,000円(税込)
中古:
5,500円(税込)
オーブントースター
(販売品)
新品:
6,600円(税込)
中古:
3,300円(税込)
モバイルWi-Fi
(レンタル)
1日あたり
220円(税込)
(容量制限あり)
ハンドスチーマー
(レンタル)
1日あたり
110円(税込)
(上限9,900円まで)
ペット用ケージ&トイレシーツセット(レンタル)




































