



エステムプラザ愛宕虎ノ門レジデンス(1DKタイプ)(港区西新橋2)
■ 物件情報
| 物件名 | エステムプラザ愛宕虎ノ門レジデンス(1DKタイプ) |
|---|---|
| 所在地 | 東京都港区西新橋2丁目34-8 |
| 最寄駅 |
東京メトロ日比谷線「虎ノ門ヒルズ」駅 徒歩5分 東京メトロ銀座線「虎ノ門」駅 徒歩7分 都営三田線「内幸町」駅 徒歩8分 JR山手線「新橋」駅 徒歩9分 JR京浜東北・根岸線「新橋」駅 徒歩9分 |
| 環 境 |
肉のハナマサ 西新橋店 徒歩5分 / 360m ファミリーマート 虎ノ門ヒルズ店 徒歩4分 / 320m ファミリーマート 西新橋二丁目店 徒歩4分 / 270m サンドラッグ 虎ノ門店 徒歩7分 / 510m 特定機能病院東京慈恵会医科大学附属病院本院 徒歩4分 / 320m 新橋四郵便局 徒歩5分 / 330m 虎の門病院 徒歩8分 / 640m |
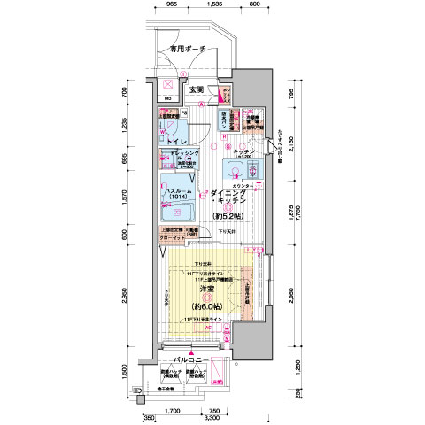
| 間取り | 1DK(25.57㎡) |
| 竣 工 | 2012年11月 |
| 構 造 | 鉄筋コンクリート造 地上14階建 |
■ 物件写真・間取り ほか

新橋と虎ノ門の間にある複合的なビジネスターミナルが、全て至近距離でございます、
東京メトロ日比谷線「虎ノ門ヒルズ」駅 徒歩5分です!
周辺には•*¨*•.¸¸♪(◦˙︶˙◦)/
●肉のハナマサ 西新橋店 300m(6:00~1:00)
●マルエツプチ 新橋五丁目店 400m(8:00~23:00)
●FUKUSHIMAYA TASTING MARKET 450m(10:00~20:00)
●福島屋 虎ノ門店 450m(8:00~21:00)
●成城石井 愛宕グリーンヒルズ店 700m(24時間)
●新橋健診センター 270m(8:00~17:00)
●東京慈恵会医科大学附属病院 350m(8:00~15:00)
●今井内科医院 550m(9:00~13:00、14:00~18:00)
●松島歯科 240m(9:30~13:00、14:00~18:00)
●富田歯科医院 450m(9:30~13:00、14:30~20:30)
─=≡Σ((( つ•̀ω•́)つ クリーニング屋さん
●マルちゃんのクリーニング 新橋店 500m(10:00~14:00、15:00~18:00)
●トモエヤ洗濯店 500m(8:00~18:00)
●ヤマト運輸 西新橋3丁目センター 88m(8:00~19:00)
●新橋四郵便局 330m
●サンドラッグ 虎ノ門店 510m
●港区立南桜公園 300m
新橋のオフィス街の中に広々とした公園でございます。
マンションには•*¨*•.¸¸♪(◦˙︶˙◦)/
分譲マンションならではのハイグレード仕様でございます
5.5m華やかなエントランス、ガラス扉を通して天然石をランダムに組み上げ庭園がございます*¨*•.¸¸♪
敷地内、防犯カメラ12台設置、24時間安全を見守り、セキュリティ安心です。
((o(^∇^)o))
室内には•*¨*•.¸¸♪(◦˙︶˙◦)/
無料でインターネット有線・無線が使い放題です(((o(*゚▽゚*)o)))
広々1DKタイプ、キッチンには2口ガスコンロ、╰(*´︶`*)╯♡効率よく料理ができます。
健康的で快適な床暖房付、(๓´˘`๓)♡足本から柔らかく体の芯まで温めます❣
(*´ω`*)❀
浴室暖房乾燥機付き
☔雨の日や夜間の洗濯をソフトに乾燥できる
寒い冬のバスルームもポカポカ暖房がございます。(*´︶`*)
ペット飼育可物件✧*。٩(ˊᗜˋ*)و✧*。大好きなペットと一緒に快適に暮らせます
長めの滞在ならビジネスホテルよりマンスリーマンションがお得です!
!!♡━━━━(゚∀゚)━━━━♡!!
● 地域紹介コラムで紹介中! ・・・ 日系・外資系企業まで、お固い感じの一流企業オフィスの集積地。
【即日入居割】初月のみ特別価格でご紹介いたします!
通常賃料261,000円のところを
初月30日分 30%OFFの182,700円の特別価格でご案内いたします!
対象条件:12月15日までにご契約開始かつ30日以上ご利用いただける方の間にご入居かつ30日以上ご契約いただける方
※ その他の日程で入居開始したいという方も相談に応じます。
※ 長期のご利用でさらにお得に!
【翌月(1月)入居】初月のみ特別価格でご紹介いたします!
通常賃料261,000円のところを
初月30日分 30%OFFの182,700円の特別価格でご案内いたします!
対象条件:1月10日までにご入居開始かつ30日以上ご利用いただける方
※ 契約延長(再契約)時、割引の継続適用はなくなります
※ その他のキャンペーンと併用はできません
【家具付賃貸プラン】1年以上ご利用いただける場合にお得になるプランです!
通常賃料261,000円のところを
ご利用期間中ずっと 171,000円~でご案内いたします!
詳しくは こちら を参照
対象条件:1年以上ご利用いただける方
※ 別途共益費が月々必要となります
※ 初期費用として、保証会社初回保証料・鍵交換代・室内クリーニング代・火災保険料が必要となります
※ 1年以上の超長期のご利用なら、この家具付賃貸プランがお得です!
【スーパーショート】1週間単位でお得にご利用いただけるプラン!
通常賃料9,200円/日のところ
6,500円/日でのご案内です
※ 寝具代・光熱費・清掃費が別途必要です。ご利用人数が追加になった場合は、光熱費が300円/日上がります。
※ 他のキャンペーンおよび割引との併用はできません。
対象条件:即日~1ヶ月未満の期間お住まいいただける方
■ 通常ご利用価格
スーパーショート
(~1ヶ月未満)
9,200円/日
64,400円/週
ショート
(30日~59日)
8,700円/日
261,000円/30日
ミドル
(60日~89日)
8,400円/日
252,000円/30日
セミロング
(90日~179日)
8,200円/日
246,000円/30日
ロング
(180日~)
7,900円/日
237,000円/30日
■ その他の費用
【水道光熱費(共益費等を含む)】
1500円/日 (2名様入居の場合 +300円/日、ペット飼育時 300円~500円/日)
【清掃費 ※初回のみ必要です】
19,800円/1ヶ月未満、25,300円/3ヶ月未満、30,800円/6ヶ月未満、41,800円/1年未満、52,800円/1年以上
※ ペット可物件の場合、飼育時には別途、保証金・登録料・追加光熱費・追加清掃費が必要です。(規約有)
※ 寝具(布団・シーツ類)は別途料金が必要です。(寝具類の提供元:株式会社ハッチ、株式会社パパネッツ)
※ 入居期間延長する場合は、再契約手数料として、別途 5,500円/回(税込)が必要です。
■ 設備情報
| 共有部分 |
![]() ![]() ![]() ![]() ![]() ![]() エレベーター、オートロック、宅配ボックス、コンシェルジュルーム、防犯カメラ、24時間利用可能ゴミ置き場 |
|---|---|
| 設備情報 |
![]() ![]() ![]() ![]() ![]() ![]() ![]() ![]() ![]() ![]() ![]() ![]() ![]() ![]() ![]() ![]() ![]() ![]() ![]() ![]() ![]() ![]() ![]()
テレビ・テレビ台、ドラム式洗濯乾燥機、縦型洗濯機、2ドア冷凍冷蔵庫、電子レンジ、カーテン、ベッド、電気ケトル、掃除機、ドライヤー、デスク・イス、ハンガー5本、トイレットペーパー2個、ティッシュ1箱、温水洗浄便座、インターネット無料、バス・トイレ別、2口ガスコンロ、浴室乾燥機、床暖房、クローゼット、独立洗面台、TVモニターホン |
■ マンスリー オプション
必需品セット
(販売品)
22,000円(税込)
タオル、バスタオル、シャンプー・リンス、ボディソープ、洗面器、風呂イス、風呂用洗剤、バススポンジ、バスマット、スリッパ、紙コップ、ティッシュ、ハンドソープ、トイレットペーパー、トイレ掃除用ブラシ、トイレ用洗剤、洗濯洗剤、ハンガー、小物干しハンガー
寝具セット
(レンタル)
シングル:
11,000円(税込)
セミダブル:
16,500円(税込)
ダブル:
16,500円(税込)
毛布 シングル:
3,300円(税込)
毛布 セミダブル:
5,500円(税込)
毛布 ダブル:
5,500円(税込)
* 寝具類の提供元:株式会社ハッチ、株式会社パパネッツ
テレワーク応援セット
(レンタル)
6,600円(税込)
・HDMIケーブル 1本
・Webカメラ 1台(200万画素 フルHD)
・スピーカーフォン 1台(マイク内蔵)
自炊セット
(販売品)
22,000円(税込)
茶碗、お椀、丼、大皿・小皿(各2枚)、箸、鍋、フライパン、包丁・まな板、おたま、フライ返し、菜箸、ボウル・ざる、スプーン・フォーク、マグカップ、食器水切カゴ、食器洗剤、スポンジ、布巾、皮むき・おろし器
炊飯器
(販売品)
新品:
11,000円(税込)
中古:
5,500円(税込)
オーブントースター
(販売品)
新品:
6,600円(税込)
中古:
3,300円(税込)
モバイルWi-Fi
(レンタル)
1日あたり
220円(税込)
(容量制限あり)
ハンドスチーマー
(レンタル)
1日あたり
110円(税込)
(上限9,900円まで)
ペット用ケージ&トイレシーツセット(レンタル)
































































