



エステムプラザ TOKYO RISE(Dタイプ)(江東区東陽3)
■ 物件情報
| 物件名 | エステムプラザ TOKYO RISE(Dタイプ) |
|---|---|
| 所在地 | 東京都江東区東陽3丁目21-3 |
| 最寄駅 |
東京メトロ東西線「木場」駅徒歩4分 東京メトロ東西線「東陽町」駅徒歩7分 東京メトロ東西線「門前仲町」駅徒歩20分 |
| 環 境 |
深川ギャザリア (スーパー・シネコン等入居の複合商業施設) 徒歩9分 / 690m セブン−イレブン 東陽店 徒歩1分 / 40m ローソン 東陽三丁目 徒歩2分 / 150m 江東洲崎橋郵便局 徒歩1分 / 80m 三菱東京UFJ銀行 木場深川支店 徒歩7分 / 530m 木場病院 徒歩8分 / 590m 順天堂東京江東高齢者医療センター 徒歩30分 / 2,400m |
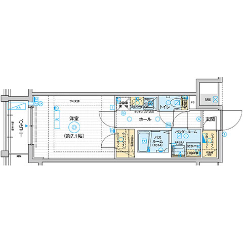
| 間取り | 1K(25.56㎡) |
| 竣 工 | 2017年6月 |
| 構 造 | 鉄筋コンクリート造 地上15階建 |
■ 物件写真・間取り ほか

築浅物件!!東京メトロ「木場」駅 徒歩4分です( *´꒳`*)੭⁾⁾
周辺には•*¨*•.¸¸♪(◦˙︶˙◦)/
●まいばすけっと木場駅前 220m(7:00~0:00)
●まいばすけっと東陽1丁目 260m(7:00~23:00)
●まいばすけっと東陽5丁目 600m(8:00~23:00)
●永田医院 160m(9:00~12:00、15:00~17:30)
●桜岡医院 220m(8:30~11:30、14:45~17:00)
●木場病院(総合病院)600m(9:00~13:00、14:00~17:00)
●森崎医院 650m(9:00~12:00、15:30~18:30)
●うと歯科クリニック 90m(10:00~13:30、15:00~19:00)
●THREE歯科・矯正歯科 300m(9:30~13:30、15:00~19:00)
●東陽町いば歯科 700m(9:30~13:00、14:30~19:00)
─=≡Σ((( つ•̀ω•́)つ クリーニング屋さん
●ポニークリーニング東陽3丁目店 130m(10:00~14:00、15:00~20:00)
●ムサシノクリーニング700m(9:00~19:00)
●テイクファイブ 東陽町店 270m(9:00~19:00)
●東陽一丁目第一公園 450m
●木場公園 ドッグラン(犬専用公園) 600m
遠足や犬のお散歩で賑わう公園でございます。
●大横川散歩道 河津桜🌸
約105本🌸の河津桜の木があります、
2月上旬から3月上旬くらいに見頃を迎え、たくさんの人たちを楽しませています。
●深川郵便局 700m
●深川ギャザリア (スーパー・シネコン等入居の複合商業施設) 690m
マンションには•*¨*•.¸¸♪(◦˙︶˙◦)/
都心生活を堅牢に守る、先進のセキュリティシステム。
安心の防犯カメラ10台設置、TVモニター付きオートロック。
不審者などの不要な侵入を24時間ガード出来ます、安心のセキュリティです。
((o(^∇^)o))
宅配ボックス設置で日時を気にせず最短で荷物を受け取れます。
不在時でも宅配ボックスに荷物が届き、帰宅と同時に受け取ることが可能です。(((o(♡´▽`♡)o)))
室内には•*¨*•.¸¸♪(◦˙︶˙◦)/
無料で光インターネット有線・無線が使い放題です(((o(*゚▽゚*)o)))
キッチンには2口ガスコンロ、╰(*´︶`*)╯♡効率よく料理ができます。
(*´︶`*)♡衣類がたっぷり収納できるクローゼットを設置しました、
衣類以外の大きな荷物も収まります。
(*´ω`*)❀
ドラム式全自動洗濯乾燥機標準設置。
洗濯から乾燥までノンストップの全自動、( ˆoˆ )/
外出中や就寝中に洗濯から乾燥まで完了
☂️雨が多い時期にも部屋干しの手間がなく、
必要な衣類を素早く洗濯できます。
ペット飼育可物件✧*。٩(ˊᗜˋ*)و✧*。大好きなペットと一緒に快適に暮らせます
長めの滞在ならビジネスホテルよりマンスリーマンションがお得です!
!!♡━━━━(゚∀゚)━━━━♡!!
【翌月(5月)入居】初月のみ特別価格でご紹介いたします!
通常賃料210,000円のところを
初月30日分 25%OFFの157,500円の特別価格でご案内いたします!
対象条件:5月10日までにご入居開始かつ30日以上ご利用いただける方
※ 契約延長(再契約)時、割引の継続適用はなくなります
※ その他のキャンペーンと併用はできません
■ 通常ご利用価格
スーパーショート
(~29日)
7,500円/日
52,500円/週
ショート
(30日~59日)
7,000円/日
210,000円/30日
ミドル
(60日~89日)
6,700円/日
201,000円/30日
セミロング
(90日~179日)
6,500円/日
195,000円/30日
ロング
(180日~)
6,200円/日
186,000円/30日
■ その他の費用
【水道光熱費(共益費等を含む)】
1500円/日 (2名様入居の場合 +300円/日、ペット飼育時 300円~500円/日)
【清掃費 ※初回のみ必要です】
19,800円/1ヶ月未満、25,300円/3ヶ月未満、30,800円/6ヶ月未満、41,800円/1年未満、52,800円/1年以上
※ ペット可物件の場合、飼育時には別途、保証金・登録料・追加光熱費・追加清掃費が必要です。(規約有)
※ 寝具(布団・シーツ類)は別途料金が必要です。(寝具類の提供元:株式会社ハッチ、株式会社パパネッツ)
※ 入居期間延長する場合は、再契約手数料として、別途 5,500円/回(税込)が必要です。
■ 設備情報
| 共有部分 |
![]() ![]() ![]() ![]() ![]() ![]() エレベーター、オートロック、宅配ボックス、コンシェルジュルーム、防犯カメラ、24時間利用可能ゴミ置き場 |
|---|---|
| 設備情報 |
![]() ![]() ![]() ![]() ![]() ![]() ![]() ![]() ![]() ![]() ![]() ![]() ![]() ![]() ![]() ![]() ![]() ![]() ![]() ![]() ![]()
テレビ・テレビ台、縦型洗濯機、2ドア冷凍冷蔵庫、電子レンジ、カーテン、ベッド、電気ケトル、掃除機、ドライヤー、デスク・イス、ハンガー5本、トイレットペーパー2個、ティッシュ1箱、温水洗浄便座、インターネット無料、バス・トイレ別、2口ガスコンロ、浴室乾燥機、クローゼット、独立洗面台、TVモニターホン |
■ マンスリー オプション
ベッド用寝具セット
(レンタル)
寝具セット:16,500円(税込)
毛布:6,600円(税込)
追加寝具セット:16,500円(税込)
* 寝具類の提供元:株式会社ハッチ、株式会社パパネッツ
必需品セット
(販売品)
22,000円(税込)
タオル、バスタオル、シャンプー・リンス、ボディソープ、洗面器、風呂イス、風呂用洗剤、バススポンジ、バスマット、スリッパ、紙コップ、ティッシュ、ハンドソープ、トイレットペーパー、トイレ掃除用ブラシ、トイレ用洗剤、洗濯洗剤、ハンガー、小物干しハンガー
テレワーク応援セット
(レンタル)
6,600円(税込)
・HDMIケーブル 1本
・Webカメラ 1台(200万画素 フルHD)
・スピーカーフォン 1台(マイク内蔵)
自炊セット
(販売品)
22,000円(税込)
茶碗、お椀、丼、大皿・小皿(各2枚)、箸、鍋、フライパン、包丁・まな板、おたま、フライ返し、菜箸、ボウル・ざる、スプーン・フォーク、マグカップ、食器水切カゴ、食器洗剤、スポンジ、布巾、皮むき・おろし器
炊飯器
(販売品)
新品:
11,000円(税込)
USED:
5,500円(税込)
オーブントースター
(販売品)
新品:
6,600円(税込)
USED:
3,300円(税込)
モバイルWi-Fi
(レンタル)
1日あたり
220円(税込)
(容量制限あり)
ハンドスチーマー
(レンタル)
1日あたり
110円(税込)
(上限9,900円まで)
ペット用ケージ&トイレシーツセット(レンタル)

























































