



エステムコート新大阪XIII ニスタ(淀川区木川東3)
■ 物件情報
| 物件名 | エステムコート新大阪XIII ニスタ |
|---|---|
| 所在地 | 大阪市淀川区木川東三丁目10番23号 |
| 最寄駅 |
Osaka Metro御堂筋線「西中島南方」駅より徒歩11分 阪急京都線「南方」駅より徒歩13分 Osaka Metro御堂筋線・JR各線「新大阪」駅より徒歩16分 阪急神戸線・宝塚線・京都線「十三」駅より徒歩17分 |
| 環 境 | |
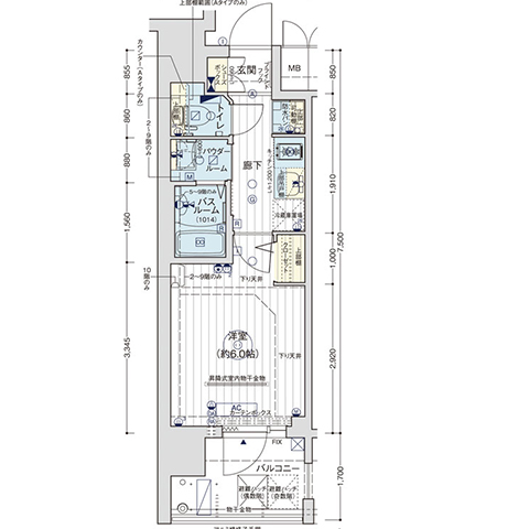
| 間取り | 1K(21.37㎡) |
| 竣 工 | 2019年8月 |
| 構 造 | 鉄筋コンクリート造 地上10階建 |
■ 物件写真・間取り ほか

2019年9月入居開始、令和生まれの新物件です。
西の玄関口「新大阪」駅を徒歩圏にし、職・住・遊のすべてが整う利便性の高い拠点となります。
外出先からスマートフォンで家電をコントロールできるIoT対応をしており、ホテルのようにカードキーで部屋の出入りが可能。
また、高いライフスタイルを演出する「コンシェルジュサービス」もあり、最新の物件らしく、これまでの暮らしを変える高品位のマンションライフをお楽しみいただけます。
もちろん、インターネット使い放題で、ペット飼育可。 長めの滞在であれば、ビジネスホテルよりもマンスリーマンションのほうがお得です!
【家具付賃貸プラン】 1年以上ご利用いただける場合にお得になるプランです!
通常賃料144,000円のところを
ご利用期間中ずっと 87,000円~でご案内いたします!
詳しくは こちら を参照
対象条件:1年以上ご利用いただける方
※ 別途共益費が月々必要となります
※ 初期費用として、保証会社初回保証料・鍵交換代・室内クリーニング代・火災保険料が必要となります
※ 1年以上の超長期のご利用なら、この家具付賃貸プランがお得です!
■ 通常ご利用価格
スーパーショート
(7日~1ヶ月未満)
5,300円/日
37,100円/週
ショート
(30日~59日)
4,800円/日
144,000円/30日
ミドル
(60日~89日)
4,500円/日
135,000円/30日
セミロング
(90日~179日)
4,300円/日
129,000円/30日
ロング
(180日~)
4,000円/日
120,000円/30日
■ その他の費用
【水道光熱費(共益費等を含む)】
1500円/日 (2名様入居の場合 +300円/日、ペット飼育時 300円~500円/日)
【清掃費 ※初回のみ必要です】
19,800円/1ヶ月未満、25,300円/3ヶ月未満、30,800円/6ヶ月未満、41,800円/1年未満、52,800円/1年以上
※ ペット可物件の場合、飼育時には別途、保証金・登録料・追加光熱費・追加清掃費が必要です。(規約有)
※ 寝具(布団・シーツ類)は別途料金が必要です。(寝具類の提供元:株式会社ハッチ、株式会社パパネッツ)
※ 入居期間延長する場合は、再契約手数料として、別途 5,500円/回(税込)が必要です。
■ 設備情報
| 共有部分 |
![]() ![]() ![]() ![]() ![]() エレベーター、オートロック、宅配ボックス、コンシェルジュルーム、防犯カメラ |
|---|---|
| 設備情報 |
![]() ![]() ![]()
テレビ・テレビ台、インターネット無料、バス・トイレ別 |
■ マンスリー オプション
必需品セット
(販売品)
22,000円(税込)
タオル、バスタオル、シャンプー・リンス、ボディソープ、洗面器、風呂イス、風呂用洗剤、バススポンジ、バスマット、スリッパ、紙コップ、ティッシュ、ハンドソープ、トイレットペーパー、トイレ掃除用ブラシ、トイレ用洗剤、洗濯洗剤、ハンガー、小物干しハンガー
寝具セット
(レンタル)
シングル:
11,000円(税込)
セミダブル:
16,500円(税込)
ダブル:
16,500円(税込)
毛布 シングル:
3,300円(税込)
毛布 セミダブル:
5,500円(税込)
毛布 ダブル:
5,500円(税込)
* 寝具類の提供元:株式会社ハッチ、株式会社パパネッツ
テレワーク応援セット
(レンタル)
6,600円(税込)
・HDMIケーブル 1本
・Webカメラ 1台(200万画素 フルHD)
・スピーカーフォン 1台(マイク内蔵)
自炊セット
(販売品)
22,000円(税込)
茶碗、お椀、丼、大皿・小皿(各2枚)、箸、鍋、フライパン、包丁・まな板、おたま、フライ返し、菜箸、ボウル・ざる、スプーン・フォーク、マグカップ、食器水切カゴ、食器洗剤、スポンジ、布巾、皮むき・おろし器
炊飯器
(販売品)
新品:
11,000円(税込)
中古:
5,500円(税込)
オーブントースター
(販売品)
新品:
6,600円(税込)
中古:
3,300円(税込)
モバイルWi-Fi
(レンタル)
1日あたり
220円(税込)
(容量制限あり)
ハンドスチーマー
(レンタル)
1日あたり
110円(税込)
(上限9,900円まで)
ペット用ケージ&トイレシーツセット(レンタル)






































