



エステムコート大手前レシェンテ(Bタイプ)(中央区釣鐘町2)
■ 物件情報
| 物件名 | エステムコート大手前レシェンテ(Bタイプ) |
|---|---|
| 所在地 | 大阪市中央区釣鐘町2丁目2-17 |
| 最寄駅 |
OsakaMetro谷町線・京阪本線「天満橋」駅 徒歩5分 OsakaMetro谷町線・中央線「谷町四丁目」駅 徒歩8分 OsakaMetro堺筋線・京阪本線「北浜」駅 徒歩11分 OsakaMetro御堂筋線・京阪本線「淀屋橋」駅 徒歩20分 |
| 環 境 |
三井住友銀行 徒歩5分 / 380m 深夜1時まで営業のスーパー 徒歩4分 / 250m ファミリーマート 徒歩1分 / 70m 三菱UFJ銀行ATM 徒歩1分 / 80m スターバックスカフェ 徒歩5分 / 380m 郵便局 徒歩4分 / 270m 大手前病院 徒歩10分 / 800m |
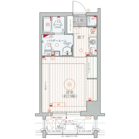
| 間取り | 1K(24.16㎡) |
| 竣 工 | 2008年11月 |
| 構 造 | 鉄筋コンクリート造12階建 |
■ 物件写真・間取り ほか
■ バーチャル内覧ツアー

周辺には•*¨*•.¸¸♪(◦˙︶˙◦)/
●ライフ天神橋店 300m(9:30~0:00)
●ムスビガーデン 大手通店 350m
●成城石井 京阪シティモール店 450m(10:00~22:00)
●フレスト天満橋店 550m(10:00~22:00)
●九州屋 京阪天満橋店 550m(10:00~22:00)
●KOHYO内本町店 650m(7:00~23:00)
●業務スーパー松屋町筋本町橋店 900m(9:00~21:00)
🏥
●ながの内科クリニック 130m(9:00~13:00、14:30~18:30)
●高折医院 200m(9:00~13:00、17:00~19:30)
●なかじまちあき内科クリニック 300m(9:00~12:30、16:00~19:00)
●大手前病院 800m(9:00~17:15)
●えがみ歯科医院 150m(10:00~13:30、15:00~19:30)
●土居歯科クリニック 350m(9:30~13:00、14:00~19:00)
●大阪高麗橋郵便局〒 280m
●ヤマト運輸 大手通1丁目センター 400m(8:00~20:00)
🌳
●北大江公園 120m
●中大江公園 350m
●中大江公園 450m
●中之島公園 600m
─=≡Σ((( つ•̀ω•́)つ💦 クリーニング屋さん
●ヤングドライ+plus 内淡路店 200m(9:00~20:00)
●ホワイト急便 北浜店 230m(9:00~19:00)
●ノムラクリーニング 谷町2丁目店 300m(9:00~20:00)
●ホワイト急便 天満橋店 350m(8:00~20:00)
●やなぎ屋クリーニング 天満橋店 350m(7:30~21:00)
マンションには•*¨*•.¸¸♪
安心な都市生活を実現する、強固なセキュリティシステム
防犯カメラ設置、カラーモニター付きオートロック
不審者などの不要な侵入を24時間ガードできる、安心のセキュリティです。
((o(^∇^)o))
宅配ボックス設置、日時を気にせず最短で荷物を受け取れます。
不在時でも宅配ボックスに荷物が届き、帰宅と同時に受け取ることが可能です。(((o(♡´▽`♡)o)))
お部屋には•*¨*•.¸¸♪
壁も厚く、プライバシーを重要視する女性にも人気。プライバシーに配慮されています。❣
ペット飼育可物件✧*。٩(ˊᗜˋ*)و✧*。大好きなペットと一緒に快適に暮らせます♥。・゚
キッチンは、IHクッキングヒータータイプ、料理も掃除も楽々です!!
トイレは温水洗浄便座も設置で
いつでも快適にお使いいただけます( ✿˘︶˘✿ ).。.:* ♬*
(*´ω`*)❀
ドラム式全自動洗濯機標準設置、洗濯から乾燥までノンストップの全自動
外出中や就寝中に洗濯から乾燥まで完了
☂️雨が多い時期にも部屋干しの手間がなく、必要な衣類を素早く洗濯できます。
( ✿˘︶˘✿ ).。.:* ♬*゜
無料でインターネット有線・無線が使い放題です(((o(*゚▽゚*)o)))
長めの滞在ならビジネスホテルよりマンスリーマンションがお得です!
!!♡━━━━(゚∀゚)━━━━♡!!
【スーパーショート・スポット割】特定の期間だけお住まいいただける方に大幅割引!
下記の期間限定でご利用いただけるお客様だけに、大幅割引いたします!
通常賃料 5,100円/日のところを
割引賃料 2,000円/日 でご利用いただけます!
※ 光熱費・清掃費・寝具代は別途必要です。ご利用人数が追加になった場合は、光熱費が300円/日上がります。
※ 他のキャンペーンおよび割引との併用はできません。
対象条件:3月1日~3月12日の期間限定 でお住まいいただける方(7日間以上からのご契約に限ります)
■ 通常ご利用価格
スーパーショート
(7日~1ヶ月未満)
5,100円/日
35,700円/週
ショート
(30日~59日)
4,600円/日
138,000円/30日
ミドル
(60日~89日)
4,300円/日
129,000円/30日
セミロング
(90日~179日)
4,100円/日
123,000円/30日
ロング
(180日~)
3,800円/日
114,000円/30日
■ その他の費用
【水道光熱費(共益費等を含む)】
1500円/日 (2名様入居の場合 +300円/日、ペット飼育時 300円~500円/日)
【清掃費 ※初回のみ必要です】
19,800円/1ヶ月未満、25,300円/3ヶ月未満、30,800円/6ヶ月未満、41,800円/1年未満、52,800円/1年以上
※ ペット可物件の場合、飼育時には別途、保証金・登録料・追加光熱費・追加清掃費が必要です。(規約有)
※ 寝具(布団・シーツ類)は別途料金が必要です。(寝具類の提供元:株式会社ハッチ、株式会社パパネッツ)
※ 入居期間延長する場合は、再契約手数料として、別途 5,500円/回(税込)が必要です。
■ 設備情報
| 共有部分 |
![]() ![]() ![]() ![]() ![]() ![]() エレベーター、オートロック、宅配ボックス、コンシェルジュルーム、防犯カメラ、24時間利用可能ゴミ置き場 |
|---|---|
| 設備情報 |
![]() ![]() ![]() ![]() ![]() ![]() ![]() ![]() ![]() ![]() ![]() ![]() ![]() ![]() ![]() ![]() ![]() ![]() ![]() ![]()
テレビ・テレビ台、縦型洗濯機、2ドア冷凍冷蔵庫、電子レンジ、カーテン、ベッド、電気ケトル、掃除機、ドライヤー、デスク・イス、ハンガー5本、トイレットペーパー2個、ティッシュ1箱、温水洗浄便座、インターネット無料、バス・トイレ別、IHコンロ、クローゼット、独立洗面台、TVモニターホン |
■ マンスリー オプション
必需品セット
(販売品)
22,000円(税込)
タオル、バスタオル、シャンプー・リンス、ボディソープ、洗面器、風呂イス、風呂用洗剤、バススポンジ、バスマット、スリッパ、紙コップ、ティッシュ、ハンドソープ、トイレットペーパー、トイレ掃除用ブラシ、トイレ用洗剤、洗濯洗剤、ハンガー、小物干しハンガー
寝具セット
(レンタル)
シングル:
11,000円(税込)
セミダブル:
16,500円(税込)
ダブル:
16,500円(税込)
毛布 シングル:
3,300円(税込)
毛布 セミダブル:
5,500円(税込)
毛布 ダブル:
5,500円(税込)
* 寝具類の提供元:株式会社ハッチ、株式会社パパネッツ
テレワーク応援セット
(レンタル)
6,600円(税込)
・HDMIケーブル 1本
・Webカメラ 1台(200万画素 フルHD)
・スピーカーフォン 1台(マイク内蔵)
自炊セット
(販売品)
22,000円(税込)
茶碗、お椀、丼、大皿・小皿(各2枚)、箸、鍋、フライパン、包丁・まな板、おたま、フライ返し、菜箸、ボウル・ざる、スプーン・フォーク、マグカップ、食器水切カゴ、食器洗剤、スポンジ、布巾、皮むき・おろし器
炊飯器
(販売品)
新品:
11,000円(税込)
中古:
5,500円(税込)
オーブントースター
(販売品)
新品:
6,600円(税込)
中古:
3,300円(税込)
モバイルWi-Fi
(レンタル)
1日あたり
220円(税込)
(容量制限あり)
ハンドスチーマー
(レンタル)
1日あたり
110円(税込)
(上限9,900円まで)
ペット用ケージ&トイレシーツセット(レンタル)





























































