



エステムコート難波WEST-SIDEⅨ レデント(大正区三軒家東2)
■ 物件情報
| 物件名 | エステムコート難波WEST-SIDEⅨ レデント |
|---|---|
| 所在地 | 大阪府大阪市大正区 三軒家東2-2-22 |
| 最寄駅 |
Osaka Metro 長堀鶴見緑地線「大正」駅 徒歩6分 JR大阪環状線「大正」駅 徒歩6分 |
| 環 境 |
■イオンモール大阪ドームシティ(ショッピングセンター)まで989m ■セブンイレブン 大阪三軒家東4丁目店(コンビニ)まで151m ■カイセイ薬局ドーム前店(ドラッグストア)まで1030m ■西区南堀江保育園てのひら(幼稚園・保育園)まで995m ■サイゼリヤ フォレオ大阪ドームシティ店(飲食店)まで1117m ■なんばパークスシネマ(その他)まで2160m |
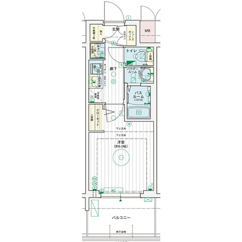
| 間取り | 1K(21.60㎡) |
| 竣 工 | 2026年2月 |
| 構 造 | 鉄筋コンクリート造 地上12階建 |
■ 物件写真・間取り ほか

エステムコート難波WEST-SIDEⅨ レデント(大阪市大正区三軒家東)は、
JR環状線・大正駅から徒歩圏内の交通利便性に優れたエリアに位置します。
周辺は住宅街で、スーパー、コンビニ、ドラッグストアなどの生活施設が充実。
難波エリアへのアクセスも良く、都市生活の利便性を享受できる環境です。
■ 通常ご利用価格
ショート
(30日~59日)
4,600円/日
138,000円/30日
ミドル
(60日~89日)
430円/日
12,900円/30日
セミロング
(90日~179日)
410円/日
12,300円/30日
ロング
(180日~)
3,800円/日
114,000円/30日
■ その他の費用
【水道光熱費(共益費等を含む)】
1500円/日 (2名様入居の場合 +300円/日、ペット飼育時 300円~500円/日)
【清掃費 ※初回のみ必要です】
25,300円/3ヶ月未満、30,800円/6ヶ月未満、41,800円/1年未満、52,800円/1年以上
※ ペット可物件の場合、飼育時には別途、保証金・登録料・追加光熱費・追加清掃費が必要です。(規約有)
※ 寝具(布団・シーツ類)は別途料金が必要です。(寝具類の提供元:株式会社ハッチ、株式会社パパネッツ)
※ 入居期間延長する場合は、再契約手数料として、別途 5,500円/回(税込)が必要です。
■ 設備情報
| 共有部分 |
![]() ![]() ![]() ![]() ![]() エレベーター、オートロック、宅配ボックス、コンシェルジュルーム、防犯カメラ |
|---|---|
| 設備情報 |
![]() ![]() ![]() ![]() ![]() ![]() ![]() ![]() ![]() ![]() ![]() ![]() ![]() ![]() ![]() ![]() ![]() ![]() ![]() ![]() ![]() ![]()
テレビ・テレビ台、ドラム式洗濯乾燥機、縦型洗濯機、2ドア冷凍冷蔵庫、電子レンジ、カーテン、ベッド、電気ケトル、掃除機、ドライヤー、デスク・イス、ハンガー5本、トイレットペーパー2個、ティッシュ1箱、温水洗浄便座、インターネット無料、2口ガスコンロ、浴室乾燥機、クローゼット、独立洗面台、TVモニターホン、動画配信サービス視聴 |
■ マンスリー オプション
必需品セット
(販売品)
22,000円(税込)
タオル、バスタオル、シャンプー・リンス、ボディソープ、洗面器、風呂イス、風呂用洗剤、バススポンジ、バスマット、スリッパ、紙コップ、ティッシュ、ハンドソープ、トイレットペーパー、トイレ掃除用ブラシ、トイレ用洗剤、洗濯洗剤、ハンガー、小物干しハンガー
寝具セット
(レンタル)
シングル:
11,000円(税込)
セミダブル:
16,500円(税込)
ダブル:
16,500円(税込)
毛布 シングル:
3,300円(税込)
毛布 セミダブル:
5,500円(税込)
毛布 ダブル:
5,500円(税込)
* 寝具類の提供元:株式会社ハッチ、株式会社パパネッツ
テレワーク応援セット
(レンタル)
6,600円(税込)
・HDMIケーブル 1本
・Webカメラ 1台(200万画素 フルHD)
・スピーカーフォン 1台(マイク内蔵)
自炊セット
(販売品)
22,000円(税込)
茶碗、お椀、丼、大皿・小皿(各2枚)、箸、鍋、フライパン、包丁・まな板、おたま、フライ返し、菜箸、ボウル・ざる、スプーン・フォーク、マグカップ、食器水切カゴ、食器洗剤、スポンジ、布巾、皮むき・おろし器
炊飯器
(販売品)
新品:
11,000円(税込)
中古:
5,500円(税込)
オーブントースター
(販売品)
新品:
6,600円(税込)
中古:
3,300円(税込)
モバイルWi-Fi
(レンタル)
1日あたり
220円(税込)
(容量制限あり)
ハンドスチーマー
(レンタル)
1日あたり
110円(税込)
(上限9,900円まで)
ペット用ケージ&トイレシーツセット(レンタル)




















































