



エステムコート北堀江(西区北堀江)
■ 物件情報
| 物件名 | エステムコート北堀江 |
|---|---|
| 所在地 | 大阪市西区北堀江1丁目22-24 |
| 最寄駅 |
OsakaMetro長堀鶴見緑地線「西大橋」駅 徒歩2分 OsakaMetro長堀鶴見緑地線・御堂筋線「心斎橋」駅 徒歩5分 OsakaMetro四ツ橋線「四ツ橋」駅 徒歩7分 OsakaMetro千日前線・長堀鶴見緑地線「 西長堀駅」 徒歩10分 |
| 環 境 |
ローソン北堀江一丁目店 徒歩1分 / 90m セブンイレブン大阪西大橋駅前店 徒歩2分 / 140m ファミリーマート北堀江一丁目店 徒歩2分 / 160m ライフ 西大橋店 徒歩5分 / 450m みずほ銀行四ツ橋支店 徒歩6分 / 450m |
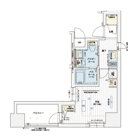
| 間取り | 1K(24.41㎡) |
| 竣 工 | 2017年12月 |
| 構 造 | 鉄筋コンクリート造 15階建 |
■ 物件写真・間取り ほか
■ バーチャル内覧ツアー

利便性の高いアクセス: 西大橋駅や四ツ橋駅など複数路線が利用可能で、
周辺は平坦な道が多く、生活利便性が高いです。
充実の周辺環境: 24時間営業のスーパーや、人気のおしゃれカフェ・洋菓子店が点在し、
グルメやショッピングを楽しめます。
夜間も明るいエリア: 車通りがあり、夜遅い時間でも明るいため、
安心して帰宅できる環境です。
【翌月(5月)入居】初月のみ特別価格でご紹介いたします!
通常賃料174,000円のところを
初月30日分 50%OFFの87,000円の特別価格でご案内いたします!
対象条件:5月10日までにご入居開始かつ30日以上ご利用いただける方
※ 契約延長(再契約)時、割引の継続適用はなくなります
※ その他のキャンペーンと併用はできません
【家具付賃貸プラン】 1年以上ご利用いただける場合にお得になるプランです!
通常賃料174,000円のところを
ご利用期間中ずっと 97,000円~でご案内いたします!
詳しくは こちら を参照
対象条件:1年以上ご利用いただける方
※ 別途共益費が月々必要となります
※ 初期費用として、保証会社初回保証料・鍵交換代・室内クリーニング代・火災保険料が必要となります
※ 1年以上の超長期のご利用なら、この家具付賃貸プランがお得です!
■ 通常ご利用価格
スーパーショート
(7日~29日)
6,300円/日
44,100円/週
ショート
(30日~59日)
5,800円/日
174,000円/30日
ミドル
(60日~89日)
5,500円/日
165,000円/30日
セミロング
(90日~179日)
5,300円/日
159,000円/30日
ロング
(180日~)
5,000円/日
150,000円/30日
■ その他の費用
【水道光熱費(共益費等を含む)】
1500円/日 (2名様入居の場合 +300円/日、ペット飼育時 300円~500円/日)
【清掃費 ※初回のみ必要です】
19,800円/1ヶ月未満、25,300円/3ヶ月未満、30,800円/6ヶ月未満、41,800円/1年未満、52,800円/1年以上
※ ペット可物件の場合、飼育時には別途、保証金・登録料・追加光熱費・追加清掃費が必要です。(規約有)
※ 寝具(布団・シーツ類)は別途料金が必要です。(寝具類の提供元:株式会社ハッチ、株式会社パパネッツ)
※ 入居期間延長する場合は、再契約手数料として、別途 5,500円/回(税込)が必要です。
■ 設備情報
| 共有部分 |
![]() ![]() ![]() ![]() ![]() エレベーター、オートロック、宅配ボックス、コンシェルジュルーム、防犯カメラ |
|---|---|
| 設備情報 |
![]() ![]() ![]()
テレビ・テレビ台、インターネット無料、バス・トイレ別 |
■ マンスリー オプション
ベッド用寝具セット
(レンタル)
寝具セット:16,500円(税込)
毛布:6,600円(税込)
追加寝具セット:16,500円(税込)
* 寝具類の提供元:株式会社ハッチ、株式会社パパネッツ
必需品セット
(販売品)
22,000円(税込)
タオル、バスタオル、シャンプー・リンス、ボディソープ、洗面器、風呂イス、風呂用洗剤、バススポンジ、バスマット、スリッパ、紙コップ、ティッシュ、ハンドソープ、トイレットペーパー、トイレ掃除用ブラシ、トイレ用洗剤、洗濯洗剤、ハンガー、小物干しハンガー
テレワーク応援セット
(レンタル)
6,600円(税込)
・HDMIケーブル 1本
・Webカメラ 1台(200万画素 フルHD)
・スピーカーフォン 1台(マイク内蔵)
自炊セット
(販売品)
22,000円(税込)
茶碗、お椀、丼、大皿・小皿(各2枚)、箸、鍋、フライパン、包丁・まな板、おたま、フライ返し、菜箸、ボウル・ざる、スプーン・フォーク、マグカップ、食器水切カゴ、食器洗剤、スポンジ、布巾、皮むき・おろし器
炊飯器
(販売品)
新品:
11,000円(税込)
USED:
5,500円(税込)
オーブントースター
(販売品)
新品:
6,600円(税込)
USED:
3,300円(税込)
モバイルWi-Fi
(レンタル)
1日あたり
220円(税込)
(容量制限あり)
ハンドスチーマー
(レンタル)
1日あたり
110円(税込)
(上限9,900円まで)
ペット用ケージ&トイレシーツセット(レンタル)






































