



エステムコート名古屋栄プレシャス(1DKタイプ)(名古屋市中区栄1)
■ 物件情報
| 物件名 | エステムコート名古屋栄プレシャス(1DKタイプ) |
|---|---|
| 所在地 | 名古屋市中区栄1丁目24番34号 |
| 最寄駅 |
地下鉄鶴舞線「大須観音」駅 徒歩5分 地下鉄鶴舞線・東山線「伏見」駅 徒歩8分 |
| 環 境 |
白川公園 徒歩4分 / 230m スーパーサンエース 伏見店 徒歩1分 / 60m ファミリーマート 白川店 徒歩3分 / 180m ローソン 伏見通若宮店 徒歩5分 / 250m ヤングドライクリーニング 徒歩1分 / 80m NTT西日本 東海病院 徒歩14分 / 1100m |
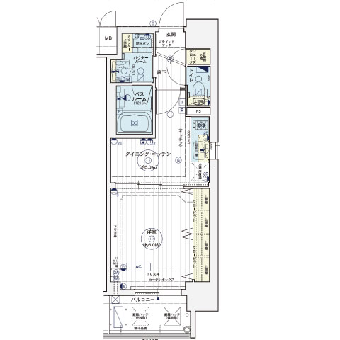
| 間取り | 1DK(30.33㎡) |
| 竣 工 | 2019年1月 |
| 構 造 | 鉄筋コンクリート造 地上15階 |
■ 物件写真・間取り ほか

鶴舞線を最寄りとする築浅物件です❣
周辺には•*¨*•.¸¸♪(◦˙︶˙◦)/
●サンエース 伏見店 70m(9:30~22:00)
●ドン・キホーテ UNY納屋橋店 800m(10:00~0:00)
●橋本内科 350m(9:30~12:30、16:00~19:00)
●奥村歯科室 550m(9:15~18:15)
●さぶり歯科 600m(10:00~13:00、14:30~19:00)
●藤井歯科医院 600m(10:00~13:00、14:30~19:00)
●名古屋栄一郵便局 500m
●ヤマト運輸 名古屋栄2丁目センター 800m(8:00~19:00)
●山口銀行 名古屋支店 450m
●みずほ銀行 豊田支店 550m
●中京銀行 本店営業部 950m
●仲ノ町公園 37m
●白川公園 230m
広場、噴水、ケヤキ並木🌳、清々しく過ごせる都市公園です!
●下園公園 700m
●裏門前公園 850m
●名古屋市科学館 550m
●名古屋市美術館 700m
─=≡Σ((( つ•̀ω•́)つ💦 クリーニング屋さん
●ヤングドライ御園店 80m(8:00~20:00)
●クリーニング ハチショップ御園店 190m(7:00~22:00)
●ヤングドライ栄店 400m(8:00~20:00)
●ホワイト急便 御園通店 450m(9:00~19:00)
マンションには•*¨*•.¸¸♪(◦˙︶˙◦)/
ペット飼育可物件✧*。٩(ˊᗜˋ*)و✧*。大好きなペットと一緒に快適に暮らせます
ペットケアスペースを1階共有スペースに設けています、散歩帰りにペットの足を洗ってから、
住戸ないに入れます‼
都心生活を堅牢に守る、先進のセキュリティシステム。
安心の防犯カメラ設置、TVモニター付きオートロック。
不審者などの不要な侵入を24時間ガード出来ます、安心のセキュリティです。
((o(^∇^)o))
宅配ボックス設置で日時を気にせず最短で荷物を受け取れます。
不在時でも宅配ボックスに荷物が届き、帰宅と同時に受け取ることが可能です。(((o(♡´▽`♡)o)))
室内には•*¨*•.¸¸♪(◦˙︶˙◦)/
セミダブルベッド仕様、広々7帖でございます。
便利な浴室暖房乾燥機と自動お湯はり追い焚き機能が付いております。(((o(*゚▽゚*)o)))
トイレは暖房洗浄便座が設置され
冬でも冷たくない、いつでも快適にお使いいただけます( ✿˘︶˘✿ ).。.:* ♬*
他に、ガス漏れ警報器、人感センサー対応ダウンライトが付いておりますੈ❤︎
(*´ω`*)❀
ドラム式全自動洗濯乾燥機を設置。
洗濯から乾燥までノンストップの全自動、( ˆoˆ )/外出中や就寝中に洗濯から乾燥まで完了
☂️雨が多い時期にも部屋干しの手間がなく、必要な衣類を素早く洗濯できます。
無料でインターネット有線・無線が使い放題です(((o(*゚▽゚*)o)))
長めの滞在ならビジネスホテルよりマンスリーマンションがお得です!
!!♡━━━━(゚∀゚)━━━━♡!!
■ 通常ご利用価格(30日未満のご利用に関しては、お電話でお問い合わせください。)
スーパーショート
(7日~29日)
6,600円/日
46,200円/週
ショート
(30日~59日)
6,100円/日
183,000円/30日
ミドル
(60日~89日)
5,800円/日
174,000円/30日
セミロング
(90日~179日)
5,600円/日
168,000円/30日
ロング
(180日~)
5,300円/日
159,000円/30日
■ その他の費用
【水道光熱費(共益費等を含む)】
1600円/日 (2名様入居の場合 +300円/日、ペット飼育時 300円~500円/日)
【清掃費 ※初回のみ必要です】
25,300円/1ヶ月未満、30,800円/3ヶ月未満、36,300円/6ヶ月未満、47,300円/1年未満、58,300円/1年以上
※ ペット可物件の場合、飼育時には別途、保証金・登録料・追加光熱費が必要です。(規約有・小型犬に限ります)
※ 寝具(布団・シーツ類)は別途料金が必要です。(寝具類の提供元:株式会社ハッチ、株式会社パパネッツ)
※ 入居期間延長する場合は、再契約手数料として、別途 5,500円/回(税込)が必要です。
■ 設備情報
| 共有部分 |
![]() ![]() ![]() ![]() ![]() エレベーター、オートロック、宅配ボックス、コンシェルジュルーム、防犯カメラ |
|---|---|
| 設備情報 |
![]() ![]() ![]()
テレビ・テレビ台、ドラム式洗濯乾燥機、バス・トイレ別 |
■ マンスリー オプション
必需品セット
(販売品)
22,000円(税込)
タオル、バスタオル、シャンプー・リンス、ボディソープ、洗面器、風呂イス、風呂用洗剤、バススポンジ、バスマット、スリッパ、紙コップ、ティッシュ、ハンドソープ、トイレットペーパー、トイレ掃除用ブラシ、トイレ用洗剤、洗濯洗剤、ハンガー、小物干しハンガー
寝具セット
(レンタル)
シングル:
11,000円(税込)
セミダブル:
16,500円(税込)
ダブル:
16,500円(税込)
毛布 シングル:
3,300円(税込)
毛布 セミダブル:
5,500円(税込)
毛布 ダブル:
5,500円(税込)
* 寝具類の提供元:株式会社ハッチ、株式会社パパネッツ
テレワーク応援セット
(レンタル)
6,600円(税込)
・HDMIケーブル 1本
・Webカメラ 1台(200万画素 フルHD)
・スピーカーフォン 1台(マイク内蔵)
自炊セット
(販売品)
22,000円(税込)
茶碗、お椀、丼、大皿・小皿(各2枚)、箸、鍋、フライパン、包丁・まな板、おたま、フライ返し、菜箸、ボウル・ざる、スプーン・フォーク、マグカップ、食器水切カゴ、食器洗剤、スポンジ、布巾、皮むき・おろし器
炊飯器
(販売品)
新品:
11,000円(税込)
中古:
5,500円(税込)
オーブントースター
(販売品)
新品:
6,600円(税込)
中古:
3,300円(税込)
モバイルWi-Fi
(レンタル)
1日あたり
220円(税込)
(容量制限あり)
ハンドスチーマー
(レンタル)
1日あたり
110円(税込)
(上限9,900円まで)
ペット用ケージ&トイレシーツセット(レンタル)


































