



エステムプラザ京都河原町通Ⅱ レジデンシャル(2DKタイプ)(下京区材木町)
■ 物件情報
| 物件名 | エステムプラザ京都河原町通Ⅱ レジデンシャル(2DKタイプ) |
|---|---|
| 所在地 | 京都府京都市下京区材木町459-2 |
| 最寄駅 |
京阪本線「七条」駅 徒歩5分 地下鉄烏丸線「京都」駅 徒歩7分 JR「京都」駅 徒歩9分 近鉄京都線「京都」駅 徒歩13分 |
| 環 境 |
京渉成小学校(小学校)まで210m 大谷中学校(中学校)まで1176m ミニストップ 七条高倉(コンビニ)まで211m 成城石井 コトチカ京都店(スーパー)まで736m 原田病院(病院)まで668m 下京区役所(その他)まで1108m |
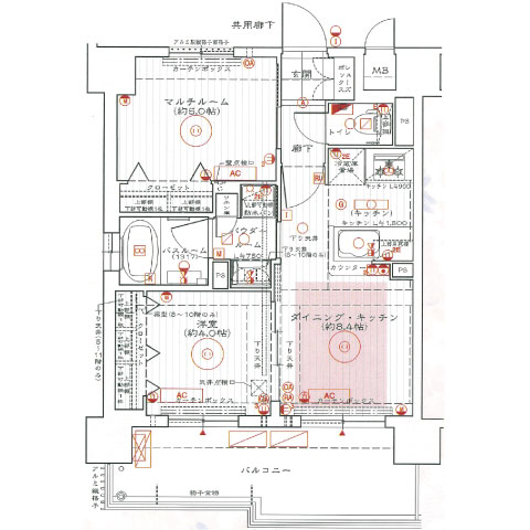
| 間取り | 2DK(41.89㎡) |
| 竣 工 | 2014年1月 |
| 構 造 | 鉄筋コンクリート造 地上11階建 |
■ 物件写真・間取り ほか
■ バーチャル内覧ツアー

40型TV(ネット動画視聴可)、セミダブルベッド2台設置、エアコン3台完備
【即日入居割】初月のみ特別価格でご紹介いたします!
通常賃料270,000円のところを
初月30日分 45%OFFの148,500円の特別価格でご案内いたします!
対象条件:即日~5月10日の間にご入居かつ30日以上ご契約いただける方
※ その他の日程で入居開始したいという方も相談に応じます。
※ 長期のご利用でさらにお得に!
■ 通常ご利用価格
ショート
(30日~59日)
9,000円/日
270,000円/30日
ミドル
(60日~89日)
8,700円/日
261,000円/30日
セミロング
(90日~179日)
8,500円/日
255,000円/30日
ロング
(180日~)
8,200円/日
246,000円/30日
■ その他の費用
【水道光熱費(共益費等を含む)】
1800円/日 (2名様入居の場合 +300円/日、ペット飼育時 300円~500円/日)
【清掃費 ※初回のみ必要です】
77,000円/期間関係なく一律です。
※ ペット可物件の場合、飼育時には別途、保証金・登録料・追加光熱費・追加清掃費が必要です。(規約有)
※ 寝具(布団・シーツ類)は別途料金が必要です。(寝具類の提供元:株式会社ハッチ、株式会社パパネッツ)
※ 入居期間延長する場合は、再契約手数料として、別途 5,500円/回(税込)が必要です。
■ 設備情報
| 共有部分 |
![]() ![]() ![]() ![]() ![]() エレベーター、オートロック、宅配ボックス、コンシェルジュルーム、防犯カメラ |
|---|---|
| 設備情報 |
![]() ![]() ![]() ![]() ![]() ![]() ![]() ![]() ![]() ![]() ![]() ![]() ![]() ![]() ![]() ![]() ![]() ![]() ![]() ![]()
テレビ・テレビ台、縦型洗濯機、2ドア冷凍冷蔵庫、電子レンジ、カーテン、ベッド、電気ケトル、掃除機、ドライヤー、デスク・イス温水洗浄便座、インターネット無料、バス・トイレ別、2口ガスコンロ、浴室乾燥機、床暖房、追い焚き、クローゼット、独立洗面台、TVモニターホン |
■ マンスリー オプション
ベッド用寝具セット
(レンタル)
寝具セット:16,500円(税込)
毛布:6,600円(税込)
追加寝具セット:16,500円(税込)
* 寝具類の提供元:株式会社ハッチ、株式会社パパネッツ
必需品セット
(販売品)
22,000円(税込)
タオル、バスタオル、シャンプー・リンス、ボディソープ、洗面器、風呂イス、風呂用洗剤、バススポンジ、バスマット、スリッパ、紙コップ、ティッシュ、ハンドソープ、トイレットペーパー、トイレ掃除用ブラシ、トイレ用洗剤、洗濯洗剤、ハンガー、小物干しハンガー
テレワーク応援セット
(レンタル)
6,600円(税込)
・HDMIケーブル 1本
・Webカメラ 1台(200万画素 フルHD)
・スピーカーフォン 1台(マイク内蔵)
自炊セット
(販売品)
22,000円(税込)
茶碗、お椀、丼、大皿・小皿(各2枚)、箸、鍋、フライパン、包丁・まな板、おたま、フライ返し、菜箸、ボウル・ざる、スプーン・フォーク、マグカップ、食器水切カゴ、食器洗剤、スポンジ、布巾、皮むき・おろし器
炊飯器
(販売品)
新品:
11,000円(税込)
USED:
5,500円(税込)
オーブントースター
(販売品)
新品:
6,600円(税込)
USED:
3,300円(税込)
モバイルWi-Fi
(レンタル)
1日あたり
220円(税込)
(容量制限あり)
ハンドスチーマー
(レンタル)
1日あたり
110円(税込)
(上限9,900円まで)
ペット用ケージ&トイレシーツセット(レンタル)






























































