


エステムプラザ京都河原町通 II レジデンシャル(下京区七条通間之町東入材木町)
■ 物件情報
| 物件名 | エステムプラザ京都河原町通 II レジデンシャル |
|---|---|
| 所在地 | 京都市下京区七条通間之町東入材木町459-2 |
| 最寄駅 |
京阪本線「七条」駅 徒歩5分 JR線「京都」駅 徒歩9分 |
| 環 境 |
ミニストップ 七条高倉店 徒歩2分 / 160m グローバルキッチン 京都ヨドバシ店 徒歩8分 / 600m エビスク七条 徒歩10分 / 750m ダイコクドラッグ 京都タワー店 徒歩7分 / 530m |
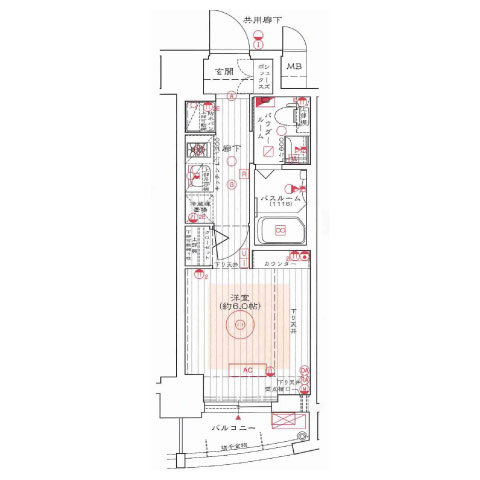
| 間取り | 1K(21.08㎡) |
| 竣 工 | 2014年1月 |
| 構 造 | 鉄筋コンクリート造 地上11階建 |
■ 物件写真・間取り ほか

平成26年1月に完成した築浅きれいな物件です!
JR東海道本線/近鉄京都線/京都市営地下鉄烏丸線「京都」駅まで徒歩7分、京阪電車京阪本線「七条」駅まで徒歩4分の位置にあり、
さらに京都駅からは多数のローカル路線バス・高速バスも発車している為、交通の便は通勤・通学・お出かけなどでどこに行くにしても最高の立地物件です。
TVモニター付オートロック完備でセキュリティ万全。室内設備は最新のエアコン・ウォシュレット・宅配ボックス等、設備充実です。
長めの滞在ならビジネスホテルよりマンスリーマンションがお得です!
【家具付賃貸プラン】 1年以上ご利用いただける場合にお得になるプランです!
通常賃料150,000円のところを
ご利用期間中ずっと 90,000円~でご案内いたします!
詳しくは こちら を参照
対象条件:1年以上ご利用いただける方
※ 別途共益費が月々必要となります
※ 初期費用として、保証会社初回保証料・鍵交換代・室内クリーニング代・火災保険料が必要となります
※ 1年以上の超長期のご利用なら、この家具付賃貸プランがお得です!
■ 通常ご利用価格
ショート
(30日~59日)
5,000円/日
150,000円/30日
ミドル
(60日~89日)
4,900円/日
147,000円/30日
セミロング
(90日~179日)
4,800円/日
144,000円/30日
ロング
(180日~)
4,600円/日
138,000円/30日
■ その他の費用
【水道光熱費(共益費等を含む)】
1500円/日 (2名様入居の場合 +300円/日、ペット飼育時 300円~500円/日)
【清掃費 ※初回のみ必要です】
25,300円/3ヶ月未満、30,800円/6ヶ月未満、41,800円/1年未満、52,800円/1年以上
※ ペット可物件の場合、飼育時には別途、保証金・登録料・追加光熱費・追加清掃費が必要です。(規約有)
※ 寝具(布団・シーツ類)は別途料金が必要です。(寝具類の提供元:株式会社ハッチ、株式会社パパネッツ)
※ 入居期間延長する場合は、再契約手数料として、別途 5,500円/回(税込)が必要です。
■ 設備情報
| 共有部分 |
![]() ![]() ![]() ![]() ![]() エレベーター、オートロック、宅配ボックス、コンシェルジュルーム、防犯カメラ |
|---|---|
| 設備情報 |
![]() ![]() ![]()
テレビ・テレビ台、ドラム式洗濯乾燥機、バス・トイレ別 |
■ マンスリー オプション
必需品セット
(販売品)
22,000円(税込)
タオル、バスタオル、シャンプー・リンス、ボディソープ、洗面器、風呂イス、風呂用洗剤、バススポンジ、バスマット、スリッパ、紙コップ、ティッシュ、ハンドソープ、トイレットペーパー、トイレ掃除用ブラシ、トイレ用洗剤、洗濯洗剤、ハンガー、小物干しハンガー
寝具セット
(レンタル)
シングル:
11,000円(税込)
セミダブル:
16,500円(税込)
ダブル:
16,500円(税込)
毛布 シングル:
3,300円(税込)
毛布 セミダブル:
5,500円(税込)
毛布 ダブル:
5,500円(税込)
* 寝具類の提供元:株式会社ハッチ、株式会社パパネッツ
テレワーク応援セット
(レンタル)
6,600円(税込)
・HDMIケーブル 1本
・Webカメラ 1台(200万画素 フルHD)
・スピーカーフォン 1台(マイク内蔵)
自炊セット
(販売品)
22,000円(税込)
茶碗、お椀、丼、大皿・小皿(各2枚)、箸、鍋、フライパン、包丁・まな板、おたま、フライ返し、菜箸、ボウル・ざる、スプーン・フォーク、マグカップ、食器水切カゴ、食器洗剤、スポンジ、布巾、皮むき・おろし器
炊飯器
(販売品)
新品:
11,000円(税込)
中古:
5,500円(税込)
オーブントースター
(販売品)
新品:
6,600円(税込)
中古:
3,300円(税込)
モバイルWi-Fi
(レンタル)
1日あたり
220円(税込)
(容量制限あり)
ハンドスチーマー
(レンタル)
1日あたり
110円(税込)
(上限9,900円まで)
ペット用ケージ&トイレシーツセット(レンタル)


































