単身赴任・テレワークに、礼金・仲介手数料どちらも0円の家具付賃貸マンション!
エステムプラザ品川大井町クリスタルヒルズ(品川区大井4)
■ 物件情報
| 物件名 | エステムプラザ品川大井町クリスタルヒルズ |
|---|---|
| 所在地 | 東京都品川区大井4-5-2 |
| 最寄駅 |
JR京浜東北線・根岸線「大井町」駅 徒歩4分 東京臨海高速鉄道「大井町」駅 徒歩4分 東急大井町線「大井町」駅 徒歩6分 |
| 環 境 |
阪急 大井町ガーデン 徒歩5分 / 350m 成城石井 アトレ大井町店 徒歩6分 / 410m 西友 大井町店 徒歩7分 / 490m セブンイレブン 品川大井4丁目店 徒歩3分 / 240m ヤマダ電機 LABI品川大井町生活館 徒歩6分 / 480m 三菱東京UFJ銀行 大井支店 徒歩6分 / 450m |
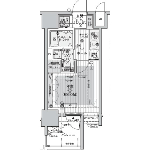
| 間取り | 1K(20.46㎡) |
| 竣 工 | 平成24年12月 |
| 構 造 | 鉄筋コンクリート造 地上15階建 |
■ 物件写真・間取り ほか
■ バーチャル内覧ツアー

賃料
112,000円/月〜
管理費
11,500円/月〜
敷金
0円
礼金
0円
仲介手数料
0円
■ その他の費用
室内クリーニング代、鍵交換代、火災保険料金
※ 物件により、定額水道料・町会費が必要な場合があります。詳しくはお問い合わせください。
※ 保証会社に加入していただく場合があります。
■ 設備情報
| 共有部分 |
![]() エレベーター、オートロック、防犯カメラ、コンシェルジュルーム、宅配ボックス |
|---|---|
| 専有部分 |
![]() ![]()
32型液晶テレビ、HDD内蔵Blu-rayレコーダー、ドラム式全自動洗濯機、暖房洗浄便座、テレビ台、エアコン、2ドア冷蔵庫、電子レンジ、電気ポット、掃除機、カーテン、ベッド |